
Ammerbuch
Rettungszentrum Altingen
Neubau Rettungszentrum Altingen für die Freiwillige Feuerwehr und das Deutsche Rote Kreuz
Bauherr
Gemeinde Ammerbuch
Status
In Planung


Einmal Holz
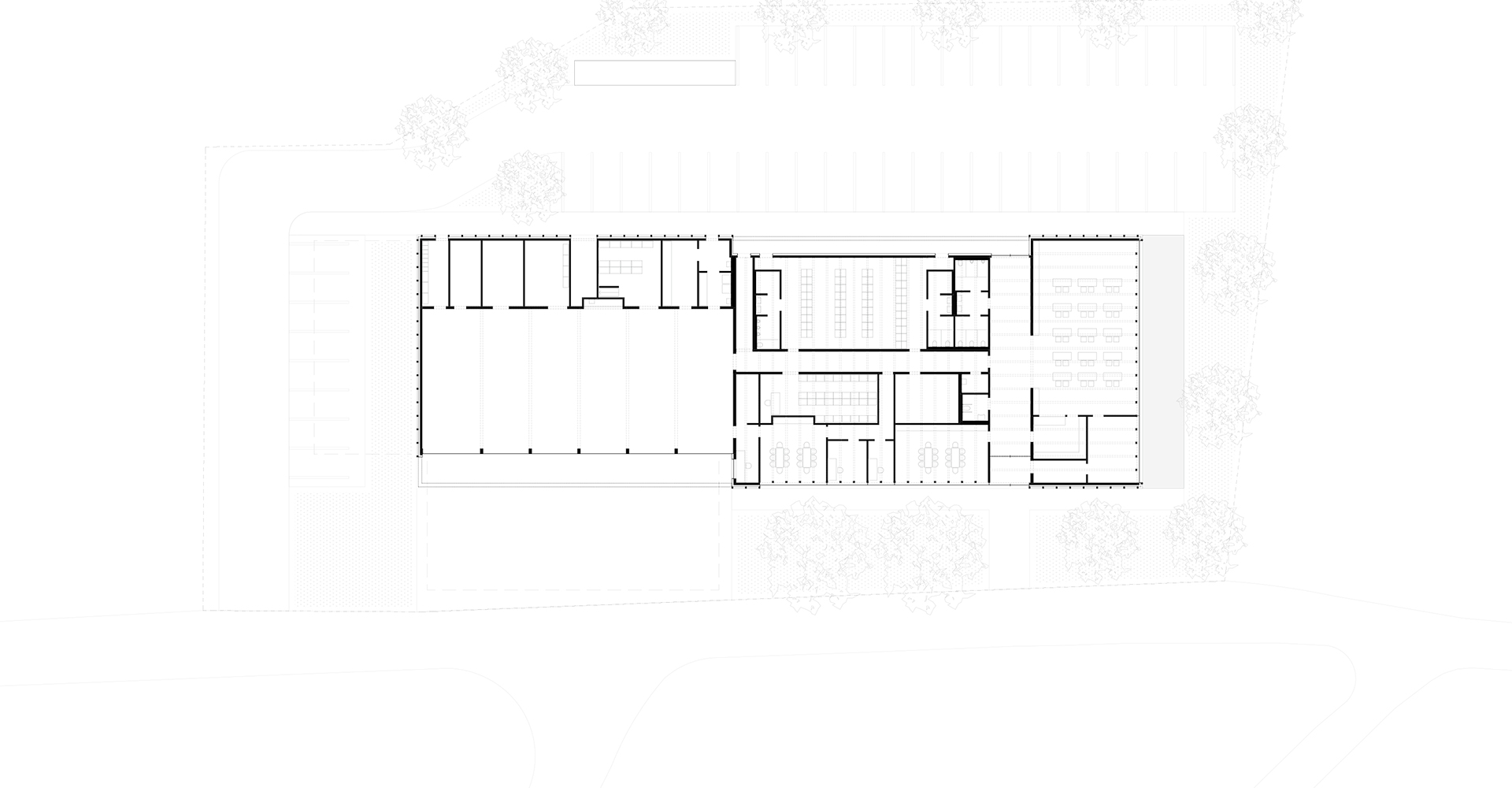
Das Rettungszentrum in Altingen, gelegen zwischen Ammertal-Bahn und einem Wohngebiet, markiert den südöstlichen Ausgang des Ortes. Ausgelegt ist das Gebäude für die Freiwillige Feuerwehr sowie das Deutsche Rote Kreuz. Die Funktion des Gebäudes ist durch die großzügig verglasten Tore sichtbar, die zur Römerstraße hin ausgerichtet sind.
Der eingeschossige Holzbau ist in Kalt- und Warmbereich unterteilt. Im nordwestlichen Teil des Gebäudes befindet sich der Kaltbereich mit Fahrzeughalle und DRK-Räumen. Der Warmbereich gliedert sich in drei Zonen: Alarmflur, Eingangsachse mit Haupt- und Nebeneingang sowie der Saalnutzung.

Der Holzbau, geplant auf einer Stahlbeton-Flachgründung, zeichnet sich durch einen hohen Vorfertigungsgrad aus. Die Konstruktion bleibt innen sichtbar, um die Materialität des Holzes zu betonen. Außen wird dies durch eine vertikale Holzschalung mit Lisenen fortgeführt, welche der Länge des Gebäudes entgegenwirkt.
